【販売終了】Clavis|大田区東六郷(全2棟)

販売終了(東六郷3)

たくさんのお問い合わせをいただきまして、ありがとうございました。
------
全2棟(※A号棟ご成約)
~交通アクセス~
■京急本線「六郷土手」駅 徒歩7分

~Point!~
■フラット35S(ZEH)対応住宅 ※適合証明書付き
■一次エネルギー消費量等級6 取得住宅

配置図

※実測図ではありません

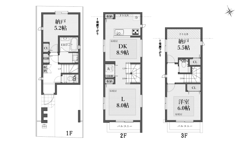
物件概要(A号棟)【ご成約】

1LDK + 2s + 2Balcony + Parking
■販売価格 5,880万円 (税込)
■土地面積 51.06㎡ (15.44坪)
 ※実測※別途SB面積約3.42㎡
■延床面積 91.38㎡ (27.64坪)
 ※車庫面積9.17㎡含む
■道路幅員 南側-私道 約3.2m ※SB後
■木造地上3階建
■準工業地域、準防火地域、第2種高度
■建蔽率/容積率 60% / 200%
■公営水道・公共下水・都市ガス
■取引形態 売主
■建築確認番号 第R07SHC108404号 (2025年6月12日取得)
■完成時期 2025年10月末 完成 (引渡時期:相談)

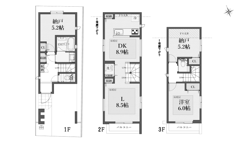
物件概要(B号棟)【ご成約】

1LDK + 2s + 2Balcony + Parking
■販売価格 5,780万円 (税込)
■土地面積 51.57㎡ (15.60坪)
 ※実測※別途SB面積約3.42㎡
■延床面積 91.64㎡ (27.72坪)
 ※車庫面積9.65㎡含む
■道路幅員 南側-私道 約3.2m ※SB後
■木造地上3階建
■準工業地域、準防火地域、第2種高度
■建蔽率/容積率 60% / 200%
■公営水道・公共下水・都市ガス
■取引形態 売主
■建築確認番号 第R07SHC108405号 (2025年6月12日取得)
■完成時期 2025年10月末 完成 (引渡時期:相談)

設備・仕様

■公共水道・下水道・都市ガス ■食器洗浄乾燥機 ■ビルトイン浄水器 ■人造大理石天板 ■シャワートイレ ■浴室換気暖房乾燥機付 ■鏡裏収納付三面鏡 ■録画機能付テレビドアホン ■全窓網戸付 ■LED照明 ■Low-eガラス ■24時間受付アフターサービス ■建物保証書付き ■定期点検 ■制震ダンパー

構造:制震ダンパー

熊本城など採用実績多数!地震から家を守る制震ダンパー!
家族の大切な住まいに、「制震」という確かな安心を。
地震の揺れに応じて制震ダンパーが伸縮し、建物の変形を抑えます。

オリジナルサービス

詳細につきましては
銀座本店 「03-6228-7785」にお問い合わせください。

(最終更新日:2026年1月31日 / 全棟ご成約・販売終了)

いいね!して最新記事を
チェックしよう!

REQUEST

「住み心地」を徹底して考え、収益物件として高い価値を備えたアパート・共同住宅をはじめ、注文住宅やリフォーム・分譲住宅など、住まいのご相談は、KDIホームまでお気軽にお問合せください。

Read More
housing plan REQUEST

まずは、お客様が考えられているアイディアを見える形にしてみませんか?いただいた情報をもとに、プランを作成いたします。

Read More