• 販売中戸建物件内覧可能物件

Clavis|川崎市多摩区生田 (全2棟)

外観パース(生田)

全2棟(※B号棟ご成約)
~交通アクセス~
■南武線「中野島」駅 徒歩10分

~Point!~
■フラット35S(ZEH)対応住宅 ※適合証明書付き
■一次エネルギー消費量等級6 取得住宅

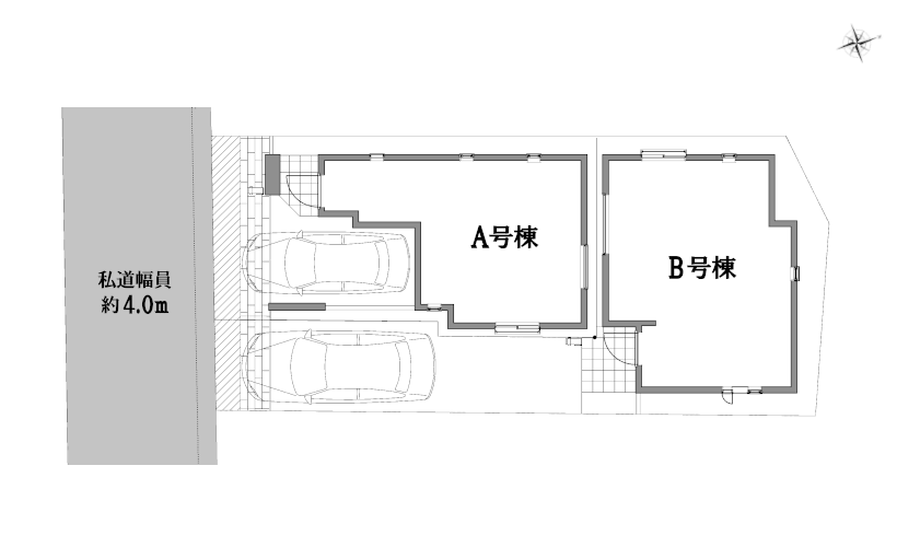
配置図

※実測図ではありません

物件概要(A号棟)

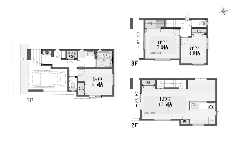
2LDK + s + 2Balcony + Parking
■販売価格 5,280万円 (税込)
■土地面積 55.24㎡ (16.71坪)
 ※実測
■延床面積 95.12㎡ (28.77坪)
 ※車庫面積9.42㎡含む
■道路幅員 南側-私道 約4.0m
■木造地上3階建
■第一種中高層住居専用地域、準防火地域、第2種高度
■建蔽率/容積率 60% / 200%(道路幅員による容積限度160%)
■公営水道・公共下水・都市ガス
■取引形態 売主
■建築確認番号 第R07SHC116858号 (2025年10月9日取得)
■完成時期 2026年3月中旬予定 (引渡時期:相談)

物件概要(B号棟)【ご成約】

2LDK + s + Balcony + Parking
■販売価格 4,780万円 (税込)
■土地面積 71.43㎡ (21.60坪)
 ※実測
■延床面積 89.90㎡ (27.19坪)
■道路幅員 南側-私道 約4.0m
■木造地上3階建
■第一種中高層住居専用地域、準防火地域、第2種高度
■建蔽率/容積率 60% / 200%(道路幅員による容積限度160%)
■公営水道・公共下水・都市ガス
■取引形態 売主
■建築確認番号 第R07SHC116859号 (2025年10月9日取得)
■完成時期 2026年3月中旬予定 (引渡時期:相談)

設備・仕様

■公共水道・下水道・都市ガス ■食器洗浄乾燥機 ■ビルトイン浄水器 ■人造大理石天板 ■シャワートイレ ■浴室換気暖房乾燥機付 ■鏡裏収納付三面鏡 ■録画機能付テレビドアホン ■全窓網戸付 ■LED照明 ■Low-eガラス ■24時間受付アフターサービス ■建物保証書付き ■定期点検 ■制震ダンパー

構造:制震ダンパー

熊本城など採用実績多数!地震から家を守る制震ダンパー!
家族の大切な住まいに、「制震」という確かな安心を。
地震の揺れに応じて制震ダンパーが伸縮し、建物の変形を抑えます。

オリジナルサービス

詳細につきましては
銀座店 「03-6228-7785」にお問い合わせください。

(最終更新日:2026年3月9日 / 竣工時期の更新)

いいね!して最新記事を
チェックしよう!

REQUEST

「住み心地」を徹底して考え、収益物件として高い価値を備えたアパート・共同住宅をはじめ、注文住宅やリフォーム・分譲住宅など、住まいのご相談は、KDIホームまでお気軽にお問合せください。

Read More
housing plan REQUEST

まずは、お客様が考えられているアイディアを見える形にしてみませんか?いただいた情報をもとに、プランを作成いたします。

Read More