• 販売中戸建物件

Clavis|市川市新田(全1棟)

外観パース(市川市新田2)

全1棟
~交通アクセス~
■総武線「市川」駅 徒歩14分

~Point!~
■第三者評価BELS評価書取得住宅 総合判定省エネ・誘導基準達成!
■一次エネルギー消費量等級6 取得住宅

配置図

※実測図ではありません

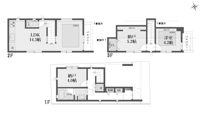
物件概要

1LDK + 2s + 2Balcony + Parking
■販売価格 4,280万円 (税込)
■土地面積 45.83㎡ (13.86坪)
 ※実測
■延床面積 76.27㎡ (23.07坪)
 ※車庫面積7.80㎡含む
■道路幅員 南東側-公道 約4.0m
■木造地上3階建
■第一種住居地域、防火指定無し、第1種高度
■建蔽率/容積率 60% / 200%
■公営水道・公共下水・都市ガス
■取引形態 売主
■建築確認番号 第R07SHC119864号 (2025年11月11日取得)
■完成時期 2026年5月上旬予定 (引渡時期:相談)

設備・仕様

■公共水道・下水道・都市ガス ■ガス温水式床暖房&
エコジョーズ熱源機 ■食器洗浄乾燥機 ■ビルトイン浄水器 ■人造大理石天板 ■シャワートイレ ■浴室換気暖房乾燥機付 ■鏡裏収納付三面鏡 ■録画機能付テレビドアホン ■全窓網戸付 ■LED照明 ■Low-eガラス ■24時間受付アフターサービス ■建物保証書付き ■定期点検 ■制震ダンパー

構造:制震ダンパー

熊本城など採用実績多数!地震から家を守る制震ダンパー!
家族の大切な住まいに、「制震」という確かな安心を。
地震の揺れに応じて制震ダンパーが伸縮し、建物の変形を抑えます。

オリジナルサービス

詳細につきましては
銀座本店 「03-6228-7785」にお問い合わせください。

(最終更新日:2026年4月16日)

いいね!して最新記事を
チェックしよう!

REQUEST

「住み心地」を徹底して考え、収益物件として高い価値を備えたアパート・共同住宅をはじめ、注文住宅やリフォーム・分譲住宅など、住まいのご相談は、KDIホームまでお気軽にお問合せください。

Read More
housing plan REQUEST

まずは、お客様が考えられているアイディアを見える形にしてみませんか?いただいた情報をもとに、プランを作成いたします。

Read More