• 販売中戸建物件内覧可能物件

Clavis|葛飾区柴又(全2棟)

外観パース(柴又6)

全2棟
~交通アクセス~
■北総線「新柴又」駅 徒歩4分
■京成金町線「柴又」駅 徒歩8分

~Point!~
■フラット35S(ZEH)対応住宅 ※適合証明書付き
■一次エネルギー消費量等級6 取得住宅

配置図

※実測図ではありません

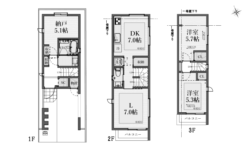
物件概要(A号棟)

2LDK + s + 2Balcony + Parking
■販売価格 4,580万円 (税込)
■土地面積 49.74㎡ (15.04坪)
 ※実測
■延床面積 90.53㎡ (27.38坪)
 ※車庫面積9.33㎡含む
■道路幅員 南西側-公道 約7.7m
■木造地上3階建
■第一種中高層住居専用地域、準防火地域、第2種高度
■建蔽率/容積率 60% / 200%
■公営水道・公共下水・都市ガス
■取引形態 売主
■建築確認番号 第R07SHC115790号 (2025年9月25日取得)
■完成時期 2026年2月下旬予定 (引渡時期:相談)

物件概要(B号棟)

2LDK + s + 2Balcony + Parking
■販売価格 4,580万円 (税込)
■土地面積 49.75㎡ (15.04坪)
 ※実測
■延床面積 88.62㎡ (26.80坪)
 ※車庫面積9.06㎡含む
■道路幅員 南西側-公道 約7.7m
■木造地上3階建
■第一種中高層住居専用地域、準防火地域、第2種高度
■建蔽率/容積率 60% / 200%
■公営水道・公共下水・都市ガス
■取引形態 売主
■建築確認番号 第R07SHC115791号 (2025年9月25日取得)
■完成時期 2026年2月下旬予定 (引渡時期:相談)

設備・仕様

■公共水道・下水道・都市ガス ■食器洗浄乾燥機 ■ビルトイン浄水器 ■人造大理石天板 ■シャワートイレ ■浴室換気暖房乾燥機付 ■鏡裏収納付三面鏡 ■録画機能付テレビドアホン ■全窓網戸付 ■LED照明 ■Low-eガラス ■24時間受付アフターサービス ■建物保証書付き ■定期点検 ■制震ダンパー

構造:制震ダンパー

熊本城など採用実績多数!地震から家を守る制震ダンパー!
家族の大切な住まいに、「制震」という確かな安心を。
地震の揺れに応じて制震ダンパーが伸縮し、建物の変形を抑えます。

オリジナルサービス

詳細につきましては
銀座店 「03-6228-7785」にお問い合わせください。

(最終更新日:2026年3月9日 / 価格改定)

いいね!して最新記事を
チェックしよう!

REQUEST

「住み心地」を徹底して考え、収益物件として高い価値を備えたアパート・共同住宅をはじめ、注文住宅やリフォーム・分譲住宅など、住まいのご相談は、KDIホームまでお気軽にお問合せください。

Read More
housing plan REQUEST

まずは、お客様が考えられているアイディアを見える形にしてみませんか?いただいた情報をもとに、プランを作成いたします。

Read More